
一、產品概述:
ZN28-12系列真空斷路器為額定電壓12kV,三相交流50Hz的高壓戶內開關設備。該產品符合GB1984-89標準,該產品總體結構為開關本體與操動機構一體安裝和開關本體與操動一體安裝和開關本體與操動機構分離安裝兩種形式.一體式結構即為ZN28-12基本型;分體式結構為ZN28A-12型,適用于各種固定式開關柜,如GG1A(Z),XGN2A10(Z)等。該產品可配用CD17、CD10型直流電磁操動機構和CT17、CT19型彈簧儲能式操動機構。
二、型號及含義:


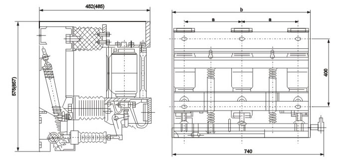
三、外形及安裝尺寸
四、使用環境條件:
a) 周圍空氣溫度:-10℃~+40℃;
b) 海拔高度:不超過1000m;
c) 濕度條件:日相對濕度的平均值不超過95%,月相對濕度平均值不超過90%,日水蒸汽壓力的平均值 不超過2.2kPa,月水蒸汽壓力平均值不超過1.8kPa;
d) 周圍空氣未明顯地受到塵埃、煙、腐蝕性和/或可燃性氣體、蒸氣或鹽霧的污染;
e) 來自開關設備和控制設備外部的振動或地動是可以忽略的;
f) 在二次系統中感應的電磁干擾的幅值不超過1.6kV。
五、訂貨須知:
訂貨時應說明產品的型號(例如斷路器的額定開斷容量、斷路器是否帶隔離開關、斷路器是否帶電流互感器及其數量、輔助電源方式等)、名稱、數及所需電流互感器的變比等。
用戶須提出安裝方式,選擇相應緊固附件。
用戶須根據使用要求選擇相應的功能配置。
隨機文件
6.1 產品合格證一份。
6.2 安裝使用說明書一份。
6.3 裝箱單一份。
六、售后服務:
我公司本著優質、高效、發展的精神,以優質的產品、貼心的服務為理念,并公開、負責地向您鄭重承諾如下:
1.我廠出售的所有產品最低保修期為一年,部分產品保修三年。保修期內免費上門維修(人為因素或不可抗拒的自然現象所引起的故障或破壞除外)。
2.在接到報修通知后,七個工作日內趕到現場并解決問題。
3.用戶可以通過售后電話咨詢有關技術問題,并得到明確的解決方案。
4.用戶在正常使用中出現性能故障時,本公司承諾以上保修服務。除此以外,國家適用法律法規另有明確規定的,本公司將遵照相關法律法規執行。
5.在保修期內,以下情況將實行有償維修服務;
(1)由于人為或不可抗拒的自然現象而發生的損壞。
(2)由于操作不當而造成的故障或損壞。
(3)由于對產品的改造、分解、組裝而發生的故障或損壞.