一·產品概述
VS1-12型側裝式真空斷路器系戶內高壓開關設備,適用于額定電壓12kV、頻率50Hz的三相電力系統中,作為保護和控制電器使用,由于真空斷路器的特殊優越性,尤其適用于需要額定電流下頻繁操作,或多次開斷短路電流的場所。
VS1-12型側裝式真空斷路器采用固定式安裝,主要用于固定式開關柜,該斷路器既可單獨使用,又可用于環網供電、箱式變或各種非標供電系統。
二·使用環境
1. 環境溫度:不高于+40℃,不低于-15℃(允許在-30℃時儲運)。
2. 海拔高度:不超過1000m。
3. 相對濕度:日平均值不大于95%,月平均不大于90%,飽和蒸汽壓日平均值不大于2.2×10 MPa,
月平均不大于1.8×10 MPa。
4. 地震烈度:不超度8級。
5. 無火災、爆炸、嚴重污穢、化學腐蝕及劇烈振動的場所。
2. 海拔高度:不超過1000m。
3. 相對濕度:日平均值不大于95%,月平均不大于90%,飽和蒸汽壓日平均值不大于2.2×10 MPa,
月平均不大于1.8×10 MPa。
4. 地震烈度:不超度8級。
5. 無火災、爆炸、嚴重污穢、化學腐蝕及劇烈振動的場所。
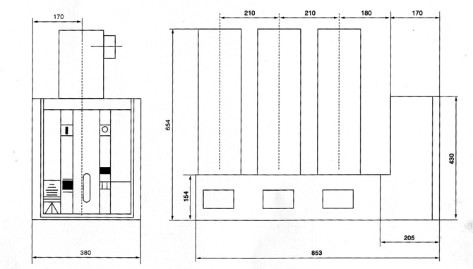
三·外形尺寸(側裝式戶內高壓真空斷路VS1-12)

三·主要技術參數(側裝式戶內高壓真空斷路VS1-12)
| 序號 | 項目 | 單位 | 參數 | ||
| 1 | 額定電壓 | KV | 12 | ||
| 2 |
額定絕 緣水平 |
額定雷電沖擊耐受電壓峰值 | KV | 75 | |
|
1 min工頻耐壓 |
42 | ||||
| 3 | 額定短路開斷電流 | KA | 20/25 | 31.5 | |
| 4 | 額定電流 | A |
630 1250 |
630 1600 2500 |
|
| 5 | 額定熱穩定電流(有效值) | KA | 20/25 | 80 | |
| 6 | 額定動穩定電流(峰值) | 63 | 80 | ||
| 7 | 額定短路關合電流(峰值) | 63 | |||
| 8 | 額定短路開斷電流開斷次數 | 次 | 50 | ||
| 9 | 二次回路工頻耐受電壓(1min) | V | 2000 | ||
| 10 | 額定操作順序 | 分-0.3s-合分-180s合分 | |||
| 11 | 額定熱穩定時間 | S | 4 | ||
| 12 | 額定單個/背對背電容器組開斷電流 | A | 630/400 | ||
| 13 | 機械壽命 | 次 | 10000 | ||